CONSTRUCTION
OF GROW- CABINET![]()








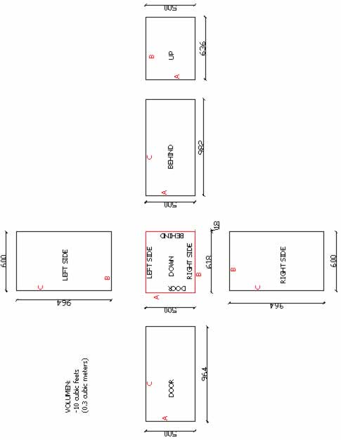
- SIZE OF PLANK YOU NEED:
side plywood sheet -60.0 x 96.4 x 1.8 cm / 2 pieces
door plywood sheet -50.0 x 96.4 x 1.8 cm
floor plywood sheet -50.0 x 61.8 x 1.8 cm
ceiling plywood sheet-50.0 x 63.6 x 1.8 cm
behind wooden plank -50,0 x 98.2 x 1.8 cm
-althogether you need – 414.6 (415) x 60 x 1.8 cm plywood sheet
and- 98.2 (100) x 50 x 1.8 cm wooden plank
-CONSTRUCTION PLAN:
1. BUY LAMPS, TIMERS, FANS, CABLES, WIRES, PH TESTER,
MYLAR OR FLAT-WHITE PAINT, THERMOSTAT......ETC.....
-CHECK IF EVERYTHING IS WORKING
2. BUY PLYWOOD SHEETS, PLANK, WIRE-NET, NAILS,
SCREWS, CONTAINER (POT)......ETC....
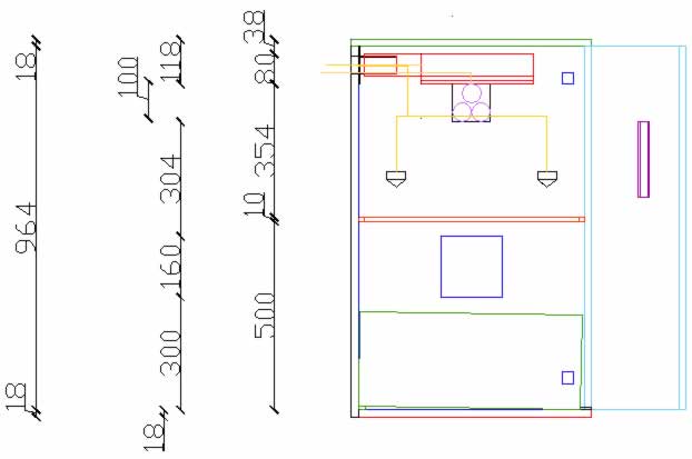
3. BUILD CLOSET I DRILL HOLES FOR WIRES AND
VENTILATION FANS
4. PAINT IN FLAT WHITE OR PUT MYLAR INSIDE
5. PUT LAMPS ,FANS, TIMERS, ADAPTERS ,WIRES
6. PULL WIRES THROUGH THE HOLES AND PUT WIRE-NET
AND POT (CONTAINER) INSIDE THE CLOSET
-CHECK IF EVERYTHING IS WORKING
7. CONECT FAN WITH INTAKE HOLE ON CLOSET AND
VENTILATION TUBE OUTSIDE THE CLOSET, PUT CARBON
FILTERS IN VENT-TUBE
8. SEAL ANY UNNECESSARY HOLES AND STERILIZE ALL
BACTERIAS
LIST OF NECCESSARY EQUIPMENT
1. PLYWOOD SHEET -415X60X1.8cm
2. WOODEN SMALL PLANKS-3X2cm, 4.5m LONG
3. CONTAINER FOR SOIL -50X60cm , 20cm DEEP (HIGHT)
4. WIRE NET -50X60cm
5. SYPOREX FOR FLOOR ISOLATION 50X63X2cm
6. WIRES FOR THE LAMPS + OUTLET
7. FLUORESCENT LAMP (60cm)
-1 WARM WHITE
-1 COOL WHITE
8. SAFETY OUTLET WITH 6 HOLES
9. TERMO+HYDROMETER
10. VENTILATION FAN (40cfm,2400 cfh, 1.2cmm, 72cmh)
11. VENTILATION EXAUST TUBE (METAL PIPE) FOR
VENTING THE CLOSET (INSIDE THIS TUBE YOU PUT
CARDBOARD TUBE FILLED WITH CARBON FILTERS)
12. ACTIVE CARBON
13. SCREWS, NAILS, WIRES, NET, DOOR-HOLDER, DOOR-MAGNETS,
14. HPS LAMP
15. PH TESTER(DIGITAL,PAPER-STICKS OR LIQUIDTESTER)
16. LIGHT-TIMERS (15 ampers)
LIST OF DISTRIBUTERS
HPS LAMP -SWIFT d.o.o. –ULICA GRADA VUKOVARA 23
10000 ZAGREB, CROATIA
TEL./FAX. 00385-(0)1 -3095-986
(PRICE- 850kn-120euro)
PH TESTER DIGITAL-MICRO-POLO d.o.o. –LACKOVA 78
MARIBOR, SLOVENIA
TEL. OO386(0)26143300
(PRICE- 450kn- 60euro)
EVERYTHING ELSE YOU'LL NEED- BAUHAUS HOME STORE
-FOR COMPLETE SETUP (INCLUDING LAMPS, CLOSET, SOIL,
FERTS,SEEDS.....) YOU NEED MAX. 330 EURO (2500kn), BUT
YOU COULD DO IT FOR 130 EURO IF YOU :BUY CHEAPER PH
TESTER, ALREADY HAVE A CLOSET THAT COULD EASILY BE
TRANSFORMED INTO A GROW CABINET OR ALMOST FOR
FREE IF:
-YOU CAN BORROW (STEAL) HPS LAMP FROM THE STREET
LIGHTNING IF YOU FIND THE WAY TO CLIMB UP AND
TAKE IT WITHOUT MAKING ANY ATTENTION-SOMETIMES
THEY ARE CLOSE TO GROUND (CHEAPEST SOLUTION)
-HPS LAMP IS ANY LAMP THAT YOU SEE GLOWING WITH AN
ORANGE OR VERY BRIGHT YELLOWISH- RED COLOR,
-USUALLY YOU CAN FIND THEM IN ANY STREET OR
PARKING PLACE